Bachelorarbeit WS 21/22
Aufgabenstellung
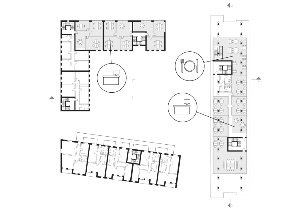
Der Städtebauliche Masterplan Innenstadt Köln führt die Konversion des Deutzer Hafens als ein Schlüsselprojekt auf, mit dem die rechtsrheinische Stadtentwicklung auf flächen- und ressourcenschonende Weise vorangetrieben werden könne. Rund um den Deutzer Hafen entsteht also ein neues Stück Köln, das ein lebendiger Teil der Stadt wird, indem es sich in die Umgebung einfügt und auf einen intensiven Austausch mit den angrenzenden Veedeln setzt. Der zukünftige Deutzer Hafen wird zwar ein selbstverständlicher Teil von Deutz sein, und doch zeigt Köln hier insgesamt neue Seiten.Aufgabe wird es sein, basierend auf dem Masterplan von COBE, die unterschiedlichen Baufelder zu vergleichen und sich für die weitere Bearbeitung, eines der Baufelder vorzunehmen und dieses dann entwickeln und entwerfen.
Ergebnisse
Jonas Babilon








Paul Hoffstadt













Erik Würker















